添加時間:2023-05-04 16:20 瀏覽次數: 來源:移動CT車
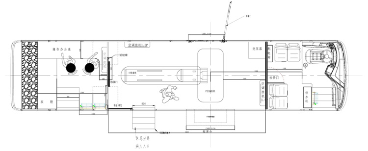
移動CT車在出現疫情,災害、事故時候可以承擔救援檢查的作用。平時可以提供體檢疾病篩查、基礎醫療送醫上門。行車時,防止傾斜係統設計,減少在行駛中因晃動而產生移位甚至掉落的現象。提高病患流通率、舒適性,醫師操作便利性,根據CT特性人、機、車一體化設計,硬件、軟件和重建技術,可以滿足繁忙的工作負載要求。掃描床電機、散熱風扇和高壓發生器主電源。在省電模式均處於關閉狀態。創新研發中遇新機,為推動國產醫療高質量發展之路貢獻力量。

聯係人:13922709440 餘先生
固 話:86-020-86059537
服務熱線:400-800-8232
郵 箱:xianhao266@163.com
公 司:廣州市香蕉播放器污版下载醫療設備股份有限公司
廣州總部地址:廣州市黃埔區開源大道188號十三棟1301室
湖北公司地址:湖北省鍾祥市經濟開發區協企聯盟園區C6、C7棟